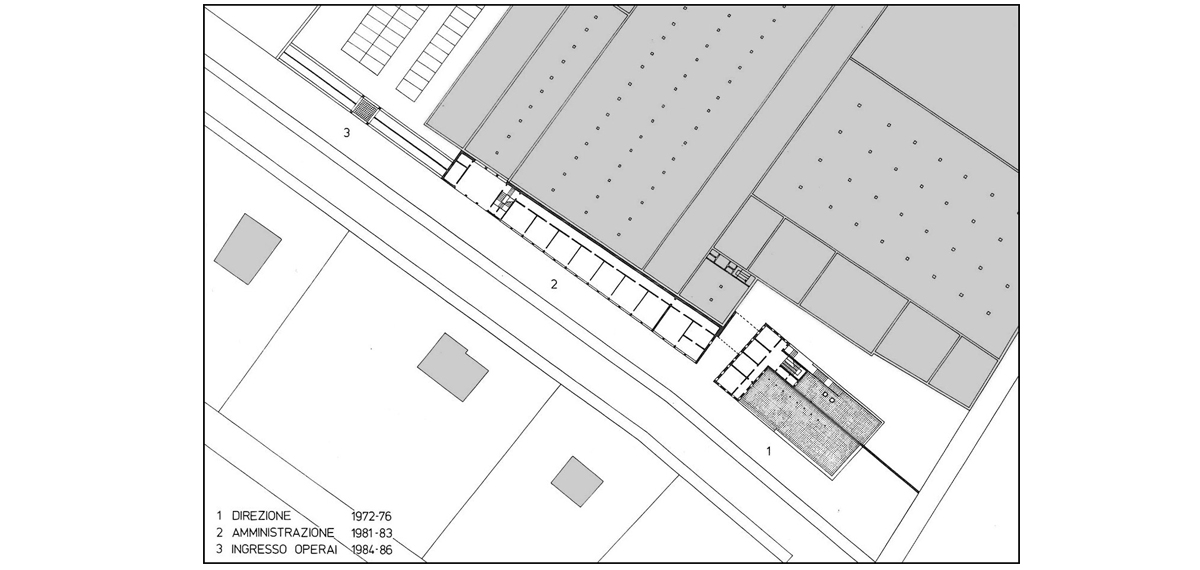
OFFICE BUILDINGS IN THIENE

Management building 1972-1975  
Administration building 1981-1983  
Workers entrance portal 1985